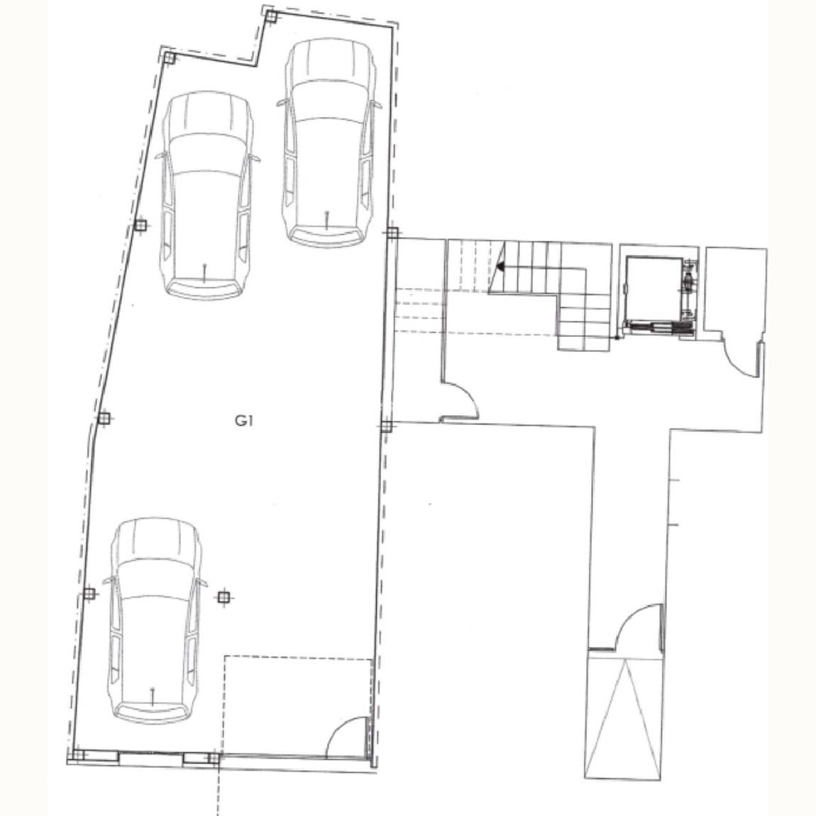
¡Descubre la oportunidad que estabas esperando! Este garaje a pie de calle, ubicado en un moderno edificio de nueva construcción, se encuentra a pocos pasos del vibrante centro de Ciutadella de Menorca. Con una amplia superficie de 77 m², este espacio es ideal para quienes buscan una solución de aparcamiento cómoda y segura.
Imagina poder estacionar hasta tres coches de modelo SUV sin preocupaciones. La escasez de aparcamiento en la zona hace que esta oferta sea aún más atractiva, especialmente con la llegada de la temporada de verano. Además, cuenta con una plaza cubierta y puerta automática para mayor comodidad.
No pierdas la oportunidad de adquirir este garaje que no solo es funcional, sino también una inversión inteligente en una ubicación privilegiada. ¡Ven a verlo y asegúrate tu espacio en el corazón de Ciutadella!
