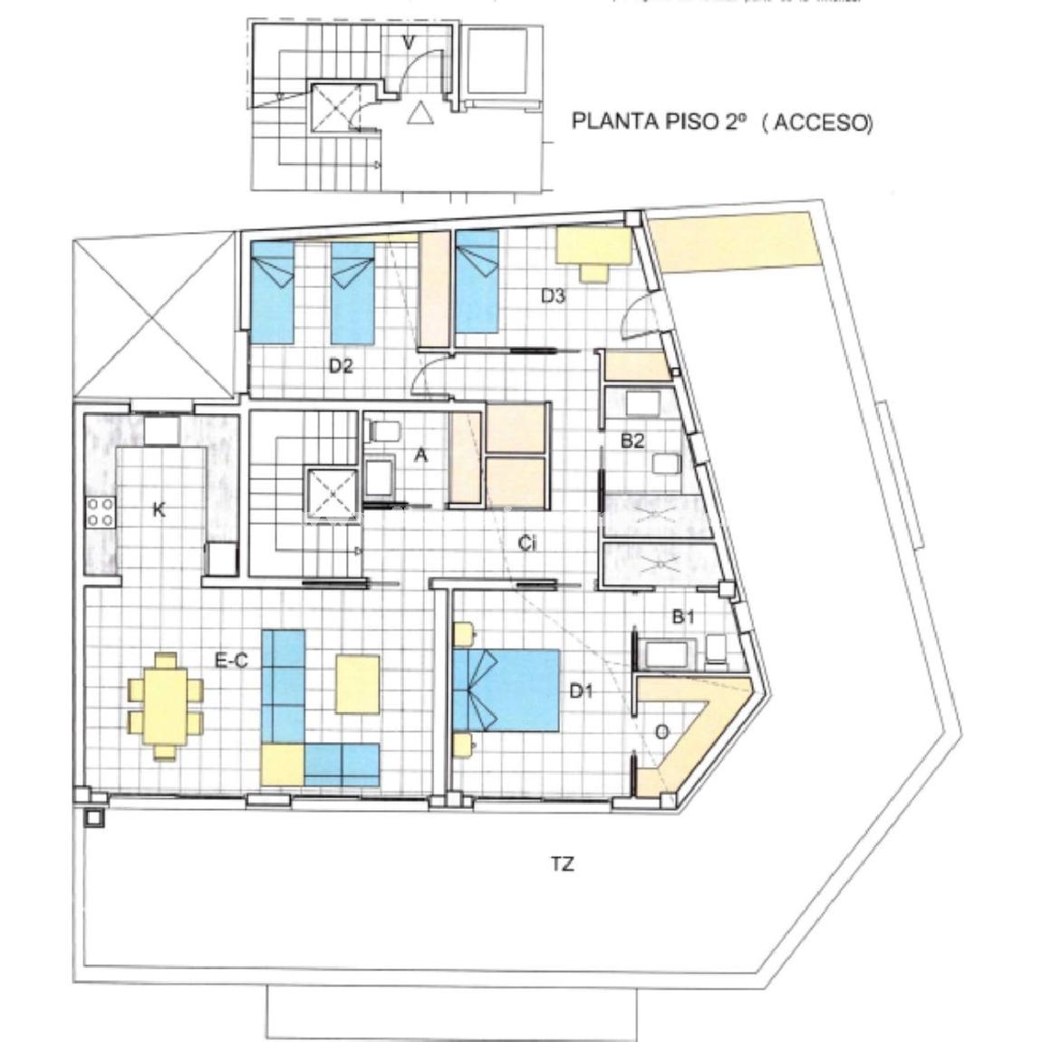
¡Descubre el ático de tus sueños en el corazón de Ciutadella! Este impresionante ático de nueva construcción te ofrece 123 m² habitables diseñados para el máximo confort y estilo. Con tres amplios dormitorios y tres baños, cada rincón está pensado para tu comodidad. La joya de este hogar es su espectacular terraza de 76 m², perfecta para disfrutar del sol mediterráneo y crear recuerdos inolvidables. El ascensor del edificio te lleva directamente a la planta del ático, facilitando el acceso sin necesidad de escaleras, ideal para personas con movilidad reducida.
La orientación sur-este asegura una luminosidad envidiable durante todo el día, mientras que el aire acondicionado te garantiza un ambiente fresco en los meses más cálidos. A pocos pasos del vibrante centro de Ciutadella, tendrás todo lo que necesitas a tu alcance, desde tiendas hasta restaurantes y servicios. No dejes pasar esta oportunidad única de vivir en un espacio moderno y bien cuidado, donde cada detalle ha sido pensado para ofrecerte una experiencia de vida inigualable. ¡Ven a visitarlo y enamórate de tu nuevo hogar!
